Добрый день!Татьян писал(а) 15 июн 2018, 21:49Спасибо за фото! Только строителей что-то целый день сегодня не видно....
15 июня было празднование мусульманского праздника «Ураза-Байрам», у сотрудников BOES нерабочий день.

Добрый день!Татьян писал(а) 15 июн 2018, 21:49Спасибо за фото! Только строителей что-то целый день сегодня не видно....

Добрый. А что там с паркингом? 2 недели прошли...Представитель ИНГРАД писал(а) 19 июн 2018, 16:00Добрый день!



имхо тыщ на 100 выше "рынка", не больше, про 600 улыбнуло - это уровень области или наземного паркинга, тут кол-во ммест относительно хат небольшое, так что со скрипом, но продадут, можете утешаться, что их себестоимость все равно выше лямаParametr писал(а) 25 июн 2018, 20:22Так что таки да - цены запредельные

кому то 150 тыс вполне нормальные деньги, к тому же с чего бы Михайлову продаваться ВЫШЕ рынкаShuran писал(а) 25 июн 2018, 20:29 имхо тыщ на 100 выше "рынка", не больше
может и не 600, но и не 900 со старта продаж. при том , что Среда подороже классом и ценником. Просто одни продают гаражи с котлована, а другие рассказывают год про согласование и вот в следующем месяце ... нас "следующим месяцем" с октября кормили.Shuran писал(а) 25 июн 2018, 20:29про 600 улыбнуло - это уровень области или наземного паркинга

я 100500 раз писал почему в разных темах, разделите площадь всего паркинга на кол-во ммест и умножьте на цену СМР 1 кв.м., тут она тыщ 45/метр, это на пальцах, а в реале СМР подземной части дороже наземной, бетона надо большеParametr писал(а) 25 июн 2018, 20:57не строил ЖК, так что не знаю. но в продажи НИЖЕ себестоимости ни разу не поверю. даже по себестоимости - не поверю.

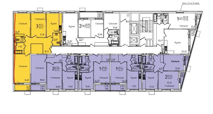
Добрый день!Parametr писал(а) 25 июн 2018, 20:22Кстати вопрос представителю, по схеме гаража появилась пристройка к 8му корпусу??? Там выход судя по лестнице на улицу ( или на -2 уровень?) явно вне зоны 8го корпуса. Как раз на месте урезанных гаражей.
Паркинг был в процессе перепроектирования по причине, указанной выше. Процесс долгий, с этим связан перенос сроков реализации. По поводу себестоимости паркинга Александр изложил реалии верно.Parametr писал(а) 25 июн 2018, 20:57Просто одни продают гаражи с котлована, а другие рассказывают год про согласование и вот в следующем месяце ... нас "следующим месяцем" с октября кормили.
на счет себестоимости - не строил ЖК, так что не знаю. но в продажи НИЖЕ себестоимости ни разу не поверю. даже по себестоимости - не поверю.
Бронирование 40 000 рублей (входит в стоимость) на 5 рабочих дней. Регистрация ДДУ включена, оформление собственности самостоятельно. Рассрочки нет.Parametr писал(а) 25 июн 2018, 20:22По покупке: Отсрочек/рассрочек нет, только 100% оплата. Регистрация самостоятельно. Бронирование на 30 (вроде) дней 40т (входит в стоимость).

да ну?! и чем же это?Parametr писал(а) 25 июн 2018, 20:57Среда подороже классом







К нормам нужно подходить с позиции здравого смысла, а если без шва прям нельзя, то и делать его на границе секций между парных стен, но никогда по квартире. Не понимаю, где Инград берет проектировщиков, которые не в состоянии решить данную проблему (она решаема) и допускающих такие проектные решения.Lidok писал(а) 08 июл 2018, 16:05Мы написали письмо застройщику, он дал ответ что да, действительно проходит температурный шов (возможны перемещения по горизонтали), но не волнуйтесь проект прошел экспертизу, всё по закону. И со всей проектной документацией вы можете ознакомиться, согласно ФЗ и ДДУ.

Ну для этого же надо целую доп. стену залить от фундамента до кровли...plan писал(а) 09 июл 2018, 15:14К нормам нужно подходить с позиции здравого смысла, а если без шва прям нельзя, то и делать его на границе секций между парных стен, но никогда по квартире. Не понимаю, где Инград берет проектировщиков, которые не в состоянии решить данную проблему (она решаема) и допускающих такие проектные решения.

В том то и дело (в крайнем случае по краю этого перекрытия должна быть фальш стена-перегородка изнутри квартиры, которая не "уедет".plan писал(а) 09 июл 2018, 15:14К нормам нужно подходить с позиции здравого смысла, а если без шва прям нельзя, то и делать его на границе секций между парных стен, но никогда по квартире. Не понимаю, где Инград берет проектировщиков, которые не в состоянии решить данную проблему (она решаема) и допускающих такие проектные решения.