ЖК Небо, Мичуринский пр-т, 56, Capital group

Для купивших: у Вас есть дети (до 18 лет)?

да
69
54%
нет
36
28%
планируются
22
17%
 
Всего голосов: 127

DT0wer
осваиваюсь
осваиваюсь
Сообщения: 135
Зарегистрирован: 11 фев 2019, 00:09
Пол: Мужской
Благодарил: 55 раз
Поблагодарили: 75 раз
Не в сети

Сообщение DT0wer »

nehrenasebe писал(а) 27 фев 2019, 11:08 Ну так там вроде вид во внутренний благоустроенный двор и боковой на речку, инсоляция вроде не совсем плохая?
Вы планировку видели? Там проходная комната посередине.
(я смотрел на неё вначале. Отказался по этой причине главным образом)
За это сообщение автора поблагодарил 1 человек:
Alis_458

Аватара пользователя
Shuran
админ
админ
Сообщения: 36198
Зарегистрирован: 12 сен 2015, 20:13
Пол: Мужской
Благодарил: 30373 раза
Поблагодарили: 23850 раз
Не в сети

Сообщение Shuran »

DT0wer писал(а) 27 фев 2019, 11:48Вы планировку видели? Там проходная комната посередине.
(я смотрел на неё вначале. Отказался по этой причине главным образом)
ну по стояку выше спрос неплохой, вряд ли дело в планировке)

Изображение

Отправлено спустя 48 секунд:
nehrenasebe писал(а) 27 фев 2019, 11:08Ну так там вроде вид во внутренний благоустроенный двор и боковой на речку, инсоляция вроде не совсем плохая?
не знаю, какая там инсоляция, но 3й этаж в экономе-то не любят, а уж в бизнесе это просто шлак

Аватара пользователя
OlEGOGRAD
давно я тут
давно я тут
Сообщения: 425
Зарегистрирован: 27 мар 2018, 12:26
Пол: Мужской
Благодарил: 115 раз
Поблагодарили: 610 раз
Не в сети

Сообщение OlEGOGRAD »

nehrenasebe писал(а) 27 фев 2019, 11:08 Ну так там вроде вид во внутренний благоустроенный двор и боковой на речку, инсоляция вроде не совсем плохая?
Там снизу и с одной стороны через стену холл входа в дом.
За это сообщение автора поблагодарил 1 человек:
MaximMEL

Beuchat
новичок
новичок
Сообщения: 29
Зарегистрирован: 21 июн 2018, 22:05
Пол: Мужской
Благодарил: 50 раз
Поблагодарили: 41 раз
Не в сети

Сообщение Beuchat »

DT0wer писал(а) 27 фев 2019, 11:48 Вы планировку видели? Там проходная комната посередине.
(я смотрел на неё вначале. Отказался по этой причине главным образом)
Кухню, как мокрую зону, можно перенести и в крайнюю часть кв. На место ванной. Это решит проблему с проходной комнаты.

Аватара пользователя
MaximMEL
новичок
новичок
Сообщения: 59
Зарегистрирован: 17 дек 2018, 10:28
Пол: Мужской
Благодарил: 207 раз
Поблагодарили: 41 раз
Не в сети

Сообщение MaximMEL »

Изображение
как выше было сказано:
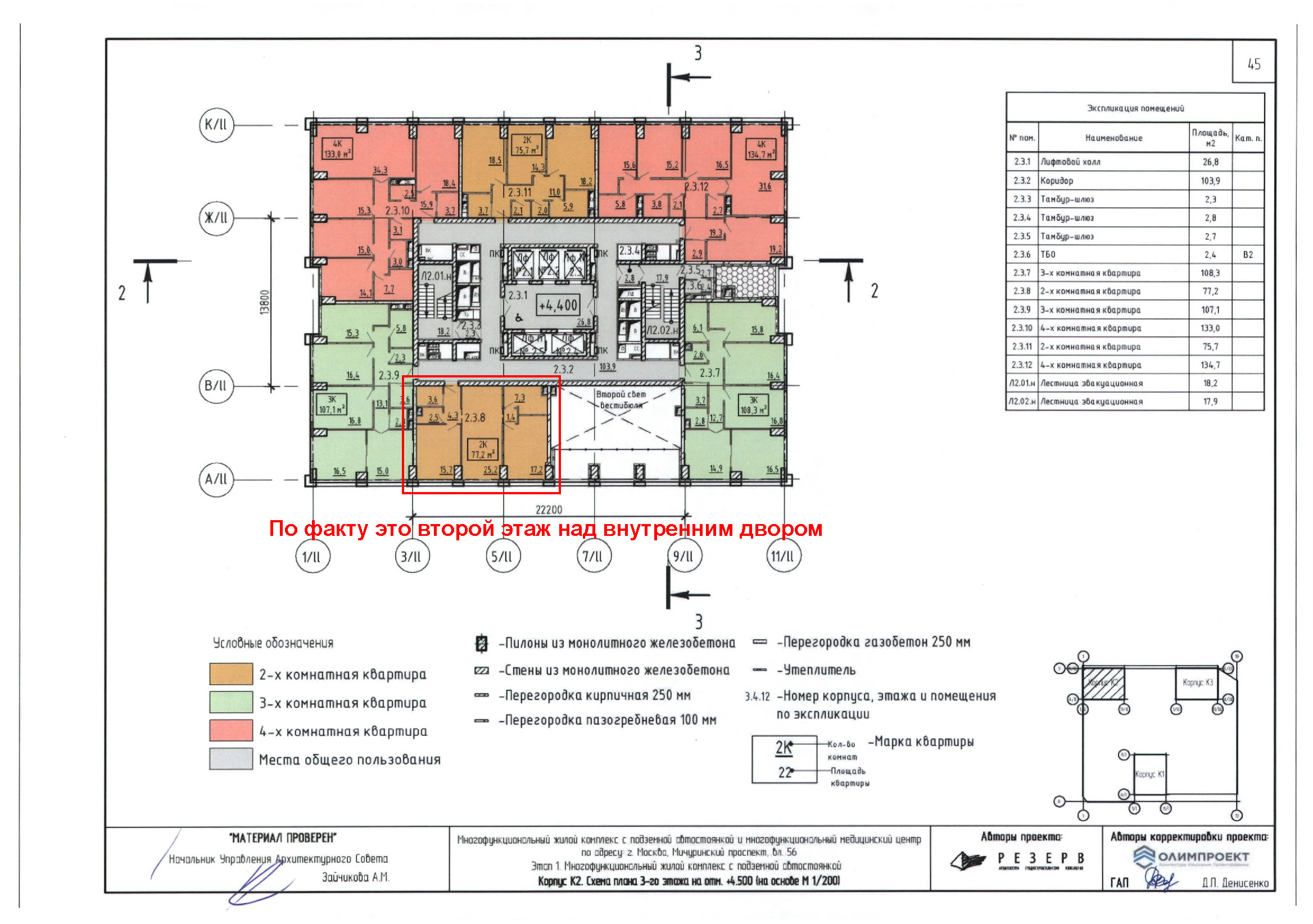
эта квартира граничит с входным вестибюлем, стены скорее всего из газобетона.
звукоизоляция думаю никакая, окна по факту второй этаж над двором.
планировка нормальная для двушки - считай трешка - проходная комната
- кухня-гостиная, но по форме конечно она пенал/вагон (комната).
а так есть две полноценных спальни изолированных - кухней-гостиной.
За это сообщение автора поблагодарили 2 человека:
OlEGOGRADShuran

Аватара пользователя
Shuran
админ
админ
Сообщения: 36198
Зарегистрирован: 12 сен 2015, 20:13
Пол: Мужской
Благодарил: 30373 раза
Поблагодарили: 23850 раз
Не в сети

Сообщение Shuran »

Beuchat писал(а) 27 фев 2019, 12:13Кухню, как мокрую зону, можно перенести и в крайнюю часть кв. На место ванной.
нельзя, https://apb1.ru/normy-i-pravila-proektov ... rovok.html

Аватара пользователя
OlEGOGRAD
давно я тут
давно я тут
Сообщения: 425
Зарегистрирован: 27 мар 2018, 12:26
Пол: Мужской
Благодарил: 115 раз
Поблагодарили: 610 раз
Не в сети

Сообщение OlEGOGRAD »

Beuchat писал(а) 27 фев 2019, 12:13Кухню, как мокрую зону, можно перенести и в крайнюю часть кв. На место ванной. Это решит проблему с проходной комнаты.
Там шум от входной группы в дом, с двух сторон квартиры, является основной причиной неликвида.
Вложения
Скрин этажа_Страница_1.jpg
Скрин этажа_Страница_1.jpg (43.81 КБ) 2187 просмотров
Скрин этажа_Страница_2.jpg
Скрин этажа_Страница_2.jpg (43.9 КБ) 2187 просмотров
За это сообщение автора поблагодарили 2 человека:
ShuranMaximMEL

DT0wer
осваиваюсь
осваиваюсь
Сообщения: 135
Зарегистрирован: 11 фев 2019, 00:09
Пол: Мужской
Благодарил: 55 раз
Поблагодарили: 75 раз
Не в сети

Сообщение DT0wer »

Shuran писал(а) 27 фев 2019, 12:03 ну по стояку выше спрос неплохой, вряд ли дело в планировке)

https://joxi.ru/Y2LYQ9wF798DXA.jpg

Отправлено спустя 48 секунд:

не знаю, какая там инсоляция, но 3й этаж в экономе-то не любят, а уж в бизнесе это просто шлак
Я думаю, здесь сочетание планировка+этаж+вид. Для сравнения, двушка в тандеме на 3эт. с видом на овраг стоит заметно дороже при меньшей площади. Что касается 3 этажа, лично я ничего плохого в этом не усматриваю (учитывая дисконт на него). Я именно эту квартиру смотрел и взял в итоге тоже низкий, только в тандеме.

Аватара пользователя
Shuran
админ
админ
Сообщения: 36198
Зарегистрирован: 12 сен 2015, 20:13
Пол: Мужской
Благодарил: 30373 раза
Поблагодарили: 23850 раз
Не в сети

Сообщение Shuran »

DT0wer писал(а) 27 фев 2019, 12:19Что касается 3 этажа, лично я ничего плохого в этом не усматриваю (учитывая дисконт на него).
и эта хата в фэмили продастся, просто позже)
За это сообщение автора поблагодарили 2 человека:
OlEGOGRADAspire

DT0wer
осваиваюсь
осваиваюсь
Сообщения: 135
Зарегистрирован: 11 фев 2019, 00:09
Пол: Мужской
Благодарил: 55 раз
Поблагодарили: 75 раз
Не в сети

Сообщение DT0wer »

Shuran писал(а) 27 фев 2019, 12:21 и эта хата в фэмили продастся, просто позже)
Фэмили вообще удивительно хорошо идёт. Если верить шахматке от vsn, в этой башне считай что продано всё, что было выставлено.

Sergey8
постоялец
постоялец
Сообщения: 302
Зарегистрирован: 14 янв 2019, 15:46
Пол: Мужской
Благодарил: 157 раз
Поблагодарили: 210 раз
Не в сети

Сообщение Sergey8 »

Можно, расположение мокрых зон во всех е3 одинаковое (со слов менеджера).

И в плане планировки е3 которые смотрят на овраг и во двор ничем не отличаются

Аватара пользователя
Shuran
админ
админ
Сообщения: 36198
Зарегистрирован: 12 сен 2015, 20:13
Пол: Мужской
Благодарил: 30373 раза
Поблагодарили: 23850 раз
Не в сети

Сообщение Shuran »

Sergey8 писал(а) 27 фев 2019, 13:21Можно, расположение мокрых зон во всех е3 одинаковое (со слов менеджера).
менеджеру можно передать из ссылки выше, пусть снипы учит
Соответственно, запрещен и перенос кухни под санузел или ванную вышерасположенной квартиры.

Sergey8
постоялец
постоялец
Сообщения: 302
Зарегистрирован: 14 янв 2019, 15:46
Пол: Мужской
Благодарил: 157 раз
Поблагодарили: 210 раз
Не в сети

Сообщение Sergey8 »

Shuran писал(а) 27 фев 2019, 13:29
менеджеру можно передать из ссылки выше, пусть снипы учит
Понятно...

Ren25
новичок
новичок
Сообщения: 63
Зарегистрирован: 07 сен 2016, 00:20
Пол: Мужской
Благодарил: 10 раз
Поблагодарили: 27 раз
Не в сети

Сообщение Ren25 »

MaximMEL писал(а) 27 фев 2019, 12:16 https://pp.userapi.com/c846323/v8463236 ... o9oKig.jpg
как выше было сказано:
эта квартира граничит с входным вестибюлем, стены скорее всего из газобетона.
звукоизоляция думаю никакая, окна по факту второй этаж над двором.
планировка нормальная для двушки - считай трешка - проходная комната
- кухня-гостиная, но по форме конечно она пенал/вагон (комната).
а так есть две полноценных спальни изолированных - кухней-гостиной.
[
Про стены из г/б не очень понял. Они разве не во всех квартирах такие?

Аватара пользователя
MaximMEL
новичок
новичок
Сообщения: 59
Зарегистрирован: 17 дек 2018, 10:28
Пол: Мужской
Благодарил: 207 раз
Поблагодарили: 41 раз
Не в сети

Сообщение MaximMEL »

Ren25 писал(а) 27 фев 2019, 20:34Про стены из г/б не очень понял. Они разве не во всех квартирах такие?
судя по АГР и по тому как активно завозят на объект газобетон BonoLit,
то все межквартирные перегородки будут из газобетона ~250мм.
По моему мнению, основанному на опыте моей сестры (ЖК Город Набережных)
газобетон - ДЕШЕВЫЙ быстровозводимый материал с последующими засадами
для покупателей квартир: звукоизоляция, штукатурка, специальные анкера...
и лично моё - экологичность, по мне так керамзитобетон лучше, а кирпич - идеален))

смотрел на ютубе советы по звукоизоляции: монтаж на стену ЗИПС-3 либо ЗИПС-4 Ультра
Звуко-Изолирующая Панельная Система - толщиной ~55мм по цене "сбитого боинга"...

сомневаюсь, что Застрой даст Согласование чтобы соседи по договоренности Сторон
смонтировали межквартирные перегородки из полнотелого кирпича 250мм например
За это сообщение автора поблагодарил 1 человек:
DT0wer