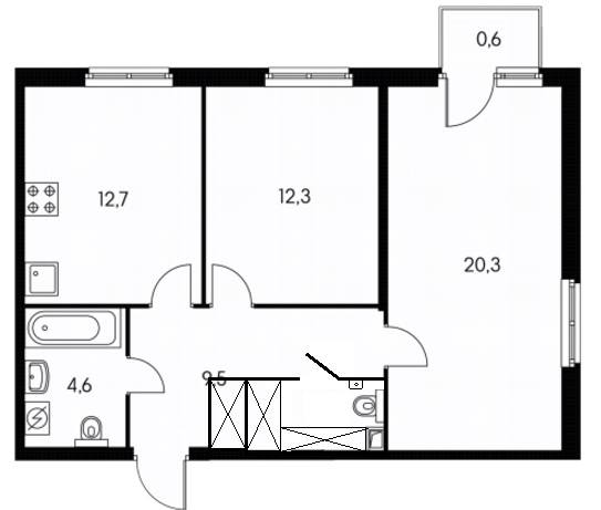
идиотские ПИКовские планировки на такую мысль натолкнулиGodz писал(а) 27 июн 2017, 12:14Операция редкая, обычно народ наоборот лишний сортир выгородить пытается
Все про перепланировку и ремонт квартир
-
Алексей В
- давно я тут

- Сообщения: 464
- Зарегистрирован: 13 ноя 2016, 19:18
- Пол: Мужской
- Благодарил: 175 раз
- Поблагодарили: 172 раза
- Не в сети
► Показать
- Nick
- постоялец

- Сообщения: 291
- Зарегистрирован: 16 сен 2015, 13:45
- Благодарил(а): 107 раз
- Поблагодарили: 127 раз
- Не в сети
Расскажите, это как заштормить в финальной части в перекрытие? Там будет от общего стояка отвод, который выше перекрытия на пару см и то, если повезёт
- Betonometr
- постоялец

- Сообщения: 243
- Зарегистрирован: 22 окт 2015, 16:47
- Благодарил(а): 81 раз
- Поблагодарили: 62 раза
- Не в сети
Выбираю из готового в старой Москве,в пешей доступности от метро и парка/сквера, монолит или новый панельный приемлемого качества,вид во двор.
Бюджет чем меньше тем лучше за от 60 метров оптимально до 10млн, реально до 12-13млн.
Выбор пал на M-house, и очень удивлена, что в комнате (!) двухкомнатной квартиры вентиляционные трубы.
На кухне вент.трубы также есть.
Один агент говорил, что это "фишка" ФСК-Лидер, что типа можно комнату и кухню так проще менять местами. В самом Лидере наличие вентиляции отрицают, офиса продаж на месте уже нет, те, кто отвечают на звонки о продаже остатков квартир, сами видимо не бывали на месте вообще.
Может, кто что видел в M-house или других домах ФСК Лидер?
Наверняка, у этой вентиляции есть какое-то назначение....этажи смотрела не высокие.
Вообще,как качество самих домов ФСК-Лидер?
Чуть шокирована рухнувшей стеной дома в Балашихе,но там Лидер типа не при чем https://m.tvc.ru/news/show/id/89832
Бюджет чем меньше тем лучше за от 60 метров оптимально до 10млн, реально до 12-13млн.
Выбор пал на M-house, и очень удивлена, что в комнате (!) двухкомнатной квартиры вентиляционные трубы.
На кухне вент.трубы также есть.
Один агент говорил, что это "фишка" ФСК-Лидер, что типа можно комнату и кухню так проще менять местами. В самом Лидере наличие вентиляции отрицают, офиса продаж на месте уже нет, те, кто отвечают на звонки о продаже остатков квартир, сами видимо не бывали на месте вообще.
Может, кто что видел в M-house или других домах ФСК Лидер?
Наверняка, у этой вентиляции есть какое-то назначение....этажи смотрела не высокие.
Вообще,как качество самих домов ФСК-Лидер?
Чуть шокирована рухнувшей стеной дома в Балашихе,но там Лидер типа не при чем https://m.tvc.ru/news/show/id/89832
- Shuran
- админ

- Сообщения: 36197
- Зарегистрирован: 12 сен 2015, 20:13
- Пол: Мужской
- Благодарил: 30373 раза
- Поблагодарили: 23849 раз
- Не в сети
в смысле, они венткороб пеноблоком не обложили? агентам таким тока шаурмой торговатьBetonometr писал(а) 27 июн 2017, 16:43Выбор пал на M-house, и очень удивлена, что в комнате (!) двухкомнатной квартиры вентиляционные трубы. На кухне вент.трубы также есть.
качество в монолите зависит от подрядчика, а не от имени застроя, так что грить что у какого-то застроя всегда лучше, чем у другого - домыслы
- Betonometr
- постоялец

- Сообщения: 243
- Зарегистрирован: 22 окт 2015, 16:47
- Благодарил(а): 81 раз
- Поблагодарили: 62 раза
- Не в сети
Shuran, я фото комнаты с вент.трубой выкладывала в ветке про ФСК-Лидер, форумчане проигнорили..к сожалению.
Мало того,что не обложили, так на плане БТИ вообще нет ни труб ни ограждающих блоков:(
Мало того,что не обложили, так на плане БТИ вообще нет ни труб ни ограждающих блоков:(
- Вложения
-
- 20170627_165223_359-2-1.jpg (63.93 КБ) 1896 просмотров
-
- вентилияция-в-спальне.jpg (92.54 КБ) 1908 просмотров
- Shuran
- админ

- Сообщения: 36197
- Зарегистрирован: 12 сен 2015, 20:13
- Пол: Мужской
- Благодарил: 30373 раза
- Поблагодарили: 23849 раз
- Не в сети
знач, вы их и обложите, делов-то:)Betonometr писал(а) 27 июн 2017, 16:51Мало того,что не обложили, так на плане БТИ вообще нет ни труб ни ограждающих блоков:(
- Betonometr
- постоялец

- Сообщения: 243
- Зарегистрирован: 22 окт 2015, 16:47
- Благодарил(а): 81 раз
- Поблагодарили: 62 раза
- Не в сети
Пол метра из площади квартиры это первое (жук застройщик отнял фактически у дольщика),но это уже неизбежно. А второе то,что никто не может объяснить толком назначение вентиляции в комнате-спальне, в ее гардеробной части (на плане БТИ гардеробная вверху слева)Shuran писал(а) 27 июн 2017, 16:54знач, вы их и обложите, делов-то:)
Мне по опыту предыдущих квартир кажется,что звуки через вент.короба неплохо разносятся:(
Вариант кввртиры в остальном неплох.
- Нешка
- активный

- Сообщения: 597
- Зарегистрирован: 03 мар 2016, 08:33
- Пол: Мужской
- Благодарил: 1036 раз
- Поблагодарили: 450 раз
- Не в сети
Есть план на котором и соседняя квартира изображена?Betonometr писал(а) 27 июн 2017, 16:59Пол метра из площади квартиры это первое (жук застройщик отнял фактически у дольщика),но это уже неизбежно. А второе то,что никто не может объяснить толком назначение вентиляции в комнате-спальне:(((
Мне по опыту предыдущих квартир кажется,что звуки через вент.короба неплохо разносятся:(
Вариант кввртиры в остальном неплох.
- Godz
- постоялец

- Сообщения: 293
- Зарегистрирован: 16 фев 2017, 13:29
- Пол: Мужской
- Благодарил: 206 раз
- Поблагодарили: 207 раз
- Не в сети
Это косяк и застройщика и БТИ.
С учетом текущего плана вы можете не обкладывать, а снести эти трубу нафиг.
Да и зачем они в спальне то?
Есть риск - что кто то сделает на месте кладовки 4.4 - кухню и в эту вентиляцию пульнет выхлоп.
Дебилы - по другому не назвать, вы вот сейчас выбираете, а кто то такие квартиры по факту принимает - на обкладывание этого шапито пол квадрата площади точно уйдет.
С учетом текущего плана вы можете не обкладывать, а снести эти трубу нафиг.
Да и зачем они в спальне то?
Есть риск - что кто то сделает на месте кладовки 4.4 - кухню и в эту вентиляцию пульнет выхлоп.
Дебилы - по другому не назвать, вы вот сейчас выбираете, а кто то такие квартиры по факту принимает - на обкладывание этого шапито пол квадрата площади точно уйдет.
- За это сообщение автора поблагодарил 1 человек:
- Betonometr
- Нешка
- активный

- Сообщения: 597
- Зарегистрирован: 03 мар 2016, 08:33
- Пол: Мужской
- Благодарил: 1036 раз
- Поблагодарили: 450 раз
- Не в сети
С вентиляцией итак понятно что обрезать/заглушить, там еще стояки по ходу, их не снесешь и придется окультуривать как то. Хочется понять откуда они вылезли.Godz писал(а) 27 июн 2017, 17:04Это косяк и застройщика и БТИ.
С учетом текущего плана вы можете не обкладывать, а снести эти трубу нафиг. ...
- Betonometr
- постоялец

- Сообщения: 243
- Зарегистрирован: 22 окт 2015, 16:47
- Благодарил(а): 81 раз
- Поблагодарили: 62 раза
- Не в сети
Первое,о чем подумала при просмотре - что в соседней квартире санузел или кухня. Но если верить плану этажа из дду такая же спальняНешка писал(а) 27 июн 2017, 17:02Есть план на котором и соседняя квартира изображена?
- Вложения
-
- kvartira-moskva-ulica-akademika-yangelya-213501055-1-1.jpg (84.13 КБ) 1860 просмотров
- Zinfandel
- активный

- Сообщения: 657
- Зарегистрирован: 16 сен 2015, 05:02
- Пол: Женский
- Благодарила: 467 раз
- Поблагодарили: 653 раза
- Не в сети
Я бы не убирала унитаз. Большой коридор позволяет увеличить помещение правого санузла. Там сделать кладовку, туда же можно поставить стиральную машину с сушкой и притулить маленький унитаз с микрораковиной. А левый санузел сделать парадно-показательным. Или: если стиральная машина будет в левом санузле, то в кладовке останется больше места для вещей.Алексей В писал(а) 27 июн 2017, 14:26идиотские ПИКовские планировки на такую мысль натолкнулигде в двухе 62м почти 7м уходит на санузлы и совершенно бестолковая прихожая занимает 10м
Отправлено спустя 22 минуты 13 секунд:

- За это сообщение автора поблагодарил 1 человек:
- Shuran
-
Next
- осваиваюсь

- Сообщения: 114
- Зарегистрирован: 03 мар 2016, 18:02
- Пол: Мужской
- Благодарил: 82 раза
- Поблагодарили: 75 раз
- Не в сети
На первом этаже нет заведений типа общепита или кулинарии?Betonometr писал(а) 27 июн 2017, 16:59А второе то,что никто не может объяснить толком назначение вентиляции в комнате
Иногда так выводят вентиляцию из нежилых помещений, чтобы не врезаться в общедомовую.
- За это сообщение автора поблагодарил 1 человек:
- Shuran
- Betonometr
- постоялец

- Сообщения: 243
- Зарегистрирован: 22 окт 2015, 16:47
- Благодарил(а): 81 раз
- Поблагодарили: 62 раза
- Не в сети
Там магазины суши, торты..Даже прямо кафешки полноценной нет. И что интересно, вентиляция не только над этими заведениями,в торцевой двушке, но и в другой некрайней двушке была,где вообще только банк и магазины...А может дело в метро?..которое под боком
- Shuran
- админ

- Сообщения: 36197
- Зарегистрирован: 12 сен 2015, 20:13
- Пол: Мужской
- Благодарил: 30373 раза
- Поблагодарили: 23849 раз
- Не в сети
тогда я не рисковал получить предписание жилинспекции из-за среза вентканала потом из-за желания выкроить полметра. косяк в доках бти косяком, а гимора можно хлебнуть по полнойBetonometr писал(а) 27 июн 2017, 19:23Там магазины суши, торты

